排污口水質在線監測方案
一、概述
近年來,隨著科技的發展和我國城市化的進程,排放到環境中的污水量日益增多,水污染嚴重,目前全國各地對污染源和排污河渠的水質監測仍停留在手工監測階段,難以反映企業及城市污水排放連續變化的情況。建立污水在線監測系統顯得極為迫切,提高水質監測能力,勢在必行。

飛夢科技在充分考慮環保部門對于環境監控和集中管理的應用需求后,利用物聯網技術、數據通訊技術、地理信息技術、視頻處理技術等,建立全方位信息化環境保護管理、監控系統,能夠對突發事件快速做出響應和處置,有效對污染事件進行防范,降低和控制意外故發生的風險。
二、系統組成
智慧排污口水質在線監測預警解決方案,采用工業級智能遙測終端,協助客戶打造基于 4G/5G 網絡的排污口處理遠程監測與管理系統。將原本分散分布于各地的排污口水質運行數據進行自動采集并實時存儲、管理和處理,作業管理人員可通過客戶端對各排污口的遠程監測及運行數據查詢。
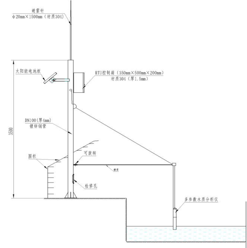
通過各種探測器,將探測到排污口利用各種傳感器與專用儀表,采集和污水處理有關的物理、化學等參數,如污水處理設備運行狀況,工業用水排放污水流量,污水 PH 值,污水的相對濁度等。各種數據從監測儀的通信口傳送至遠程監測中心站。監測中心進行數據匯總、整理和綜合分析;同時將監測信息傳至環保局,由環保局對企業進行監督管理。智慧排污口水質在線監測預警系統由監測中心、通信網絡、前端監測設備、測量設備四部分組成。
監測中心:由計算機管理平臺、移動端管理平臺組成;
通信網絡:移動運營商;
監測設備:污水排放口監控終端;
計控設備:電磁流量計、COD 在線分析儀、氨氮/各類重金屬在線分析儀、電動閥門、高清網絡攝像頭等組成。

- 設備安裝
流量計安裝設計和安裝現場圖:


水質傳感器安裝設計和現場安裝圖:






水井各傳感器安裝圖:

1、現場勘查 2、安裝前井選擇 3、監測站建設

四、監測系統功能
1、監測站點分布
系統配有 GIS 地圖,可顯示當前所有監測站點的分布地理位置,方便管理者確定監測站位置,如發生報警超標事件,可第一時間定位站點位置。

2、實時在線監控
排污口在線監測系統可通過傳感器設備,在線實時監測 COD、各類重金屬、流速、流量等參數的變化情況。

3、監測預警
通過系統平臺,用戶可設置所監測參數的安全值域,一旦前端傳感器監測到某處水質參數超過安全值域,系統將發送報警信息通知用戶,以便快速處理,將污染減至低。
4、數據分析查詢
污水在線監測系統,7*24 小時實時監控,自動采集,無需人工看顧。系統自動生成數據圖表,用戶可直觀了解水質變化情況。采集數據可保存,隨時查看歷史數據,并可用于分析,打印存檔。
飛夢水質監測系統手機端:




5、視頻監控
系統可對監控區域進行 24 小時全天候遠程實時實時監控,對監測站附近的環境變化以及排污口情況通過視頻觀測了解實際情況。
五、系統特點
1、連續采集:可以獲得 24 小時連續的在線監測水質數據;
2、自動處理:能對收集到的數據進行處理和存?。?/span>
3、自動傳輸:將監測的數據自動傳輸到相關的智能部門。
六、應用場景
排污前端監測通過排污口即可實現污水排放實時監測,內置數據傳輸單元與太陽能+鋰電池,解決了城市施工繁雜的問題。適用于沿河管道排污口排放、工業污水處理池滿溢、市政污水管道滿溢、養殖場污水排放等實時監測場景使用。

